- Woonoppervlakte
- Circa 115 m²
- Inhoud
- Circa 450 m³
- Bouwjaar
- Gebouwd in 2001
- Aantal kamers
- 4 kamers (3 slaapkamers)
ENGLISH TEXT BELOW
OMSCHRIJVING
Luxueus en licht hoek appartement gelegen op de begane grond met een royaal terras aan de prachtig aangelegde binnentuin, drie ruime slaapkamers, energielabel A++ en afgekochte erfpacht tot 2068! Het appartement maakt onderdeel uit van het in 2021 opgeleverde complex The Wave. Een modern en harmonieus ontworpen gebouw met een stijlvolle entree, lobby, bibliotheek en een fraaie binnentuin. Het appartement heeft een zeer praktische indeling en is hoogwaardig en strak afgewerkt. De vloerverwarming en vloerkoeling zorgen voor een prettig leefklimaat gedurende het hele jaar. De Céramiquelaan ligt in de gewilde wijk Overhoeks, één van de meest populaire wijken van hip Amsterdam-Noord, dichtbij het centrum van de stad aan het Schegpark, het EYE Filmmuseum, de A’DAM Toren en ’t IJ! Kortom; een bijzonder comfortabel, luxueus en duurzaam hoek appartement op een toplocatie in Amsterdam!
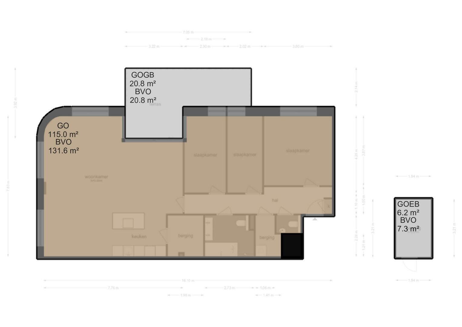
INDELING (zie plattegrond)
Bij een gebouw en locatie als deze past een stijlvolle gemeenschappelijke entree met een fraai aangelegde binnentuin en ontvangstruimte. Vervolgens de entree van het appartement met plaats voor de garderobe en een separaat toilet met fontein. De hal biedt toegang tot alle vertrekken en beschikt verder over een ruime berging voor de techniek (WKO/WTW) en aansluitingen voor de wasmachine/droger. Aan de tuinzijde liggen drie zeer goed bemeten slaapkamers allemaal voorzien van grote draai/kiep ramen. De plafond hoogte van 3.00 meter geven de kamers een extra ruimtelijk gevoel. Vervolgens de riante vierkante woonkamer. Door de hoekligging, hoogte van het plafond en glazenpuien heeft de woonkamer zeer veel daglicht toetreding. Via een schuifdeur wordt het riante terras bereikt uitkijkend over de binnentuin. De luxueuze Siematic keuken is voorzien van een kookeiland met een bar en inbouwapparatuur van Siemens. Naast de keuken een tweede ruime berging ideaal als bijkeuken. De strakke badkamer is in het midden van het appartement gesitueerd en voorzien van een inloopdouche, een dubbel wastafelmeubel, een tweede toilet en een ligbad. Het gehele appartement is voorzien van een mooie houten visgraatvloer met vloerverwarming en koeling verdeeld in zones, wat zorgt voor een zeer aangenaam klimaat. Verder beschikt het appartement over een zeer ruime berging in de onderbouw van het complex en een privé parkeerplaats (ad. € 65.000) met mogelijkheid voor een laadstation. Tevens nog een gemeenschappelijke fietsenberging op de begane grond.
OMGEVING
The Wave ligt op een unieke plek in Amsterdam aan het Schegpark. De nieuwe woonwijk ‘Aan het IJ’ onderdeel van Overhoeks, ligt op een steenworp afstand van Paradiso Noord en de culturele vrijplaats Tolhuistuin. Maar ook dichtbij de Van der Pekbuurt voor de dagelijkse boodschappen en de markt. En er komt in rap tempo meer bij... Aan de overkant de Sky Bar, restaurants en Spa&Wellness van hotel Maritim. En aan de Docklandsweg om de hoek is onlangs de gezellige wijnbar Vindict geopend en kleinschalige retail. Denk bijvoorbeeld aan een lunchroom, biologische supermarkt en een hip koffiezaakje op de hoek van het Schegpark, onder de nieuwe gebouwen The Twins en The Bow. Tevens is er een Albert Heijn aan de andere kant van het Schegpark. Als je in de wijk Aan het IJ woont, heb je in principe geen auto nodig. Met de pont sta je zo in het centrum van Amsterdam. De veerverbindingen over het IJ zijn gratis. En met De Noord/Zuidlijn reis je snel en gemakkelijk van Amsterdam Noord naar het centrum en station Zuid. Met de auto rijd je binnen een mum van tijd de ring van Amsterdam op. Auto’s zijn in ‘Aan het IJ’ overigens zoveel mogelijk te gast en uit beeld, omdat groen & water in de omgeving een van de belangrijkste pijlers zijn. Kortom; een toplocatie met alles wat Amsterdam te bieden heeft binnen handbereik!
BIJZONDERHEDEN
- bouwjaar 2021
- hoogwaardig afgewerkt
- drie ruime slaapkamers
- plafondhoogte 3,00 meter
- mooie houten visgraatvloer
- twee ruime inpandige bergingen
- volledig geïsoleerd met energielabel A++
- sfeervol en riante gemeenschappelijk entree
- luxueuze keuken (Siematic) en complete badkamer
- privé berging en gemeenschappelijke fietsenstalling
- luxueus appartementencomplex met statige uitstraling
- riant terras van 21m2 grenzend aan de fraaie binnentuin
- vloerverwarming en vloerkoeling middels LTEO/WKO-systeem
- erfpacht gemeente Amsterdam, canon afgekocht tot 15-12-2068
- ideaal gelegen ten opzichte van het Centraal Station en Ring A-10
- privé parkeerplaats los te koop ad. € 65.000 (laadstation mogelijk)
- professionele en financieel gezonde Vereniging van Eigenaars (58 leden)
- gelegen op een steenworp afstand van de Jordaan en de oude binnenstad
Deze informatie is door ons met de nodige zorgvuldigheid samengesteld. Onzerzijds wordt echter geen enkele aansprakelijkheid aanvaard voor enige onvolledigheid, onjuistheid of anderszins, dan wel de gevolgen daarvan. Alle opgegeven maten en oppervlakten zijn slechts indicatief.
ENGLISH TEXT*
DESCRIPTION
Luxurious and bright corner apartment on the ground floor with a spacious terrace overlooking the beautifully landscaped communal garden, three generously sized bedrooms, energy label A++, and leasehold paid off until 2068! The apartment is part of The Wave, a modern complex completed in 2021. The building is harmoniously designed and offers a stylish entrance, lobby, library, and an attractive courtyard garden. The apartment itself has a highly practical layout and is finished to an excellent standard. Underfloor heating and cooling ensure a comfortable indoor climate all year round. Céramiquelaan is located in the sought-after Overhoeks district, one of the most popular neighborhoods in trendy Amsterdam-North, right by Schegpark, the EYE Film Museum, the A’DAM Tower, and the IJ River—yet just minutes from the city center. In short: a particularly comfortable, luxurious, and sustainable corner apartment in a prime location in Amsterdam!
LAYOUT (see floor plan)
The building and its location are complemented by a stylish communal entrance with a beautifully landscaped courtyard and reception area. The apartment entrance features space for a wardrobe and a separate guest toilet with washbasin. The hallway provides access to all rooms and includes a large utility/storage room housing the technical installations (WKO/WTW) and washer/dryer connections. On the garden side, there are three generously sized bedrooms, each fitted with large tilt-and-turn windows. With a ceiling height of 3.00 meters, the rooms feel exceptionally spacious. The impressive square-shaped living room benefits from abundant natural light thanks to the corner position, high ceilings, and floor-to-ceiling windows. A sliding door opens to the large terrace with a beautiful view over the communal garden. The luxurious Siematic kitchen includes a cooking island with bar seating and Siemens built-in appliances. Adjacent is a second large storage room, ideal as a pantry. The sleek bathroom, located centrally in the apartment, is fitted with a walk-in shower, double washbasin, second toilet, and bathtub. Throughout the apartment is a beautiful herringbone wooden floor with zoned underfloor heating and cooling, ensuring a very pleasant indoor climate. Additional features include a very spacious private storage room in the basement, a private parking space (available separately for €65,000) with the option for an electric charging station, as well as a communal bicycle storage on the ground floor.
SURROUNDINGS
The Wave is uniquely situated in Amsterdam, directly next to Schegpark. The new residential area Aan het IJ, part of Overhoeks, is just steps away from Paradiso Noord and the cultural hotspot Tolhuistuin. The lively Van der Pek neighborhood is also close by for daily groceries and its local market. And the area continues to develop quickly: across the street, the Sky Bar, restaurants, and Spa & Wellness of Hotel Maritim are opening soon. Around the corner on Docklandsweg, the cozy wine bar Vindict has recently opened, alongside small-scale retail such as a lunch café, organic supermarket, and trendy coffee bar. An Albert Heijn supermarket is located on the other side of Schegpark. Living in Aan het IJ means you hardly need a car. Free ferries take you directly across the IJ River into the city center. The North/South metro line provides quick and easy access to the city center and Amsterdam Zuid. By car, you can reach the Amsterdam Ring (A10) in just minutes. Cars are kept as much out of sight as possible in the neighborhood, with greenery and water taking center stage. In short: a top location with everything Amsterdam has to offer right at your fingertips!
DETAILS
- built in 2021
- three spacious bedrooms
- finished to a high standard
- ceiling height of 3.00 meters
- two large internal storage rooms
- fully insulated, energy label A++
- beautiful herringbone wooden floor
- elegant and spacious communal entrance
- ideally located near Central Station and Ring A10
- private storage room and communal bicycle storage
- luxurious kitchen (Siematic) and complete bathroom
- underfloor heating and cooling via LTEO/WKO system
- prestigious apartment complex with a stately appearance
- just a stone’s throw from the Jordaan and the historic city center
- leasehold (Municipality of Amsterdam), paid off until 15-12-2068
- large 21 m² terrace adjacent to the landscaped courtyard garden
- professionally managed and financially sound HOA (58 members)
- private parking space available separately (€65,000, charging station possible)
This information has been compiled by us with the utmost care. However, we accept no liability for any incompleteness, inaccuracies, or otherwise, nor for any consequences thereof. All stated dimensions and surface areas are merely indicative. Lees de volledige omschrijving
Overdracht
- Vraagprijs
- € 1.065.000 k.k.
- Status
- Verkocht onder voorbehoud
- Aanvaarding
- Per direct beschikbaar
- Bijdrage VvE
- € 255,00 per maand
Bouw
- Object type
- Benedenwoning (appartement)
- Soort bouw
- Bestaande bouw
- Bouwjaar
- 2001
- Toegankelijkheid
- Toegankelijk voor mensen met een beperking en toegankelijk voor ouderen
- Soort dak
- Plat dak bedekt met bitumineuze dakbedekking en metaal
- Keurmerken
- SWK Garantiecertificaat
Oppervlakte en inhoud
- Woonoppervlakte
- 115 m²
- Inhoud
- 450 m³
- Externe bergruimte
- 7 m²
- Gebouwgeb. buitenruimte
- 21 m²
Indeling
- Aantal kamers
- 4 kamers (3 slaapkamers)
- Aantal badkamers
- 1 badkamer en 1 apart toilet
- Badkamervoorzieningen
- Douche, dubbele wastafel, inloopdouche, ligbad, toilet, vloerverwarming, en wastafelmeubel
- Aantal woonlagen
- 1 woonlaag
- Gelegen op
- Begane grond
- Voorzieningen
- Buitenzonwering, lift, mechanische ventilatie, schuifpui, en TV kabel
Energie
- Energielabel
- A
- Energielabel registratie
- 06-07-2021
- Isolatie
- Driedubbel glas en volledig geïsoleerd
- Verwarming
- Aardwarmte, gehele vloerverwarming en warmte terugwininstallatie
- Warm water
- Aardwarmte en centrale voorziening
Buitenruimte
- Ligging
- Aan park, aan water en in woonwijk
- Tuin
- Zonneterras
- ligging tuin
- Gelegen op het noordwesten
Bergruimte
- Schuur / berging
- Box
- Voorzieningen
- Elektra en stromend water
Garage
- Soort garage
- Parkeerkelder en parkeerplaats
Parkeergelegenheid
- Soort parkeergelegenheid
- Parkeergarage
VvE checklist
- Inschrijving KvK
- Ja
- Jaarlijkse vergadering
- Ja
- Periodieke bijdrage
- Ja (€ 255,00 per maand)
- Reservefonds aanwezig
- Ja
- Onderhoudsplan
- Ja
- Opstalverzekering
- Ja
Energieverbruik in Amsterdam
Energielabel deze woning
Energielabel A
Publicatie energielabel: 06-07-2021
Stroomverbruik per jaar
(Gemiddelde appartement in Amsterdam)
Gasverbruik per jaar
(Gemiddelde appartement in Amsterdam)
* Cijfers zijn afkomstig van het CBS en bedoeld als indicatie en kunnen verschillen voor deze woning
Indicatie hypotheeklasten
Eigen inleg:
Spaargeld / overwaarde
Rente:
Laagste 10-jaars rente
Laagste 10-jaars rente
2,75% - Centraal Beheer Groen... - NHG
3,04% - Argenta Groen Hypothee... - 80%
Laagste 20-jaars rente
3,18% - Argenta Groen Hypothee... - NHG
3,39% - Argenta Groen Hypothee... - 80%
Laagste 30-jaars rente
3,35% - Argenta Groen Hypothee... - NHG
3,56% - Argenta Groen Hypothee... - 80%
Hypotheek:
Bruto maandlasten: € 0 p/m
Netto maandlasten: € 0 p/m
Hoe berekenen we dit?
Het rentepercentage is gebaseerd op de laagste 10 jaars vaste rente voor één hypotheekdeel. De vermelde rente (3.04% zonder NHG) is gecontroleerd op 30-10-2025. Deze berekening is gebaseerd op een annuïteitenhypotheek die volledig wordt afgelost, waarbij de maandlasten gedurende de gehele looptijd gelijk blijven. De werkelijke rente en netto maandlasten kunnen variëren, afhankelijk van uw persoonlijke situatie en de hypotheekverstrekker. Raadpleeg een financieel adviseur voor een nauwkeurige berekening en advies. Aan deze berekening kunnen geen rechten worden ontleend; het dient enkel als indicatie.
Documentatie
Kadastrale kaart
Leefomgeving
Plattegronden PDF
BAG uittreksel
Brochure
Bezichtiging
Bod uitbrengen
Waardebepaling
Zoekopdracht
Alles downloaden
Zonnegrenzen bekijken
Op de kaart
Inwoners in Amsterdam
Cijfers voor postcodegebied 1031
- Totaal aantal inwoners
- 6560 inwoners
- Mannen
- 50%
- Vrouwen
- 50%
Inwoners in Amsterdam
Cijfers voor postcodegebied 1031
- tot 15 jaar
- 16%
- 15 tot 25 jaar
- 10%
- 25 tot 35 jaar
- 38%
- 45 tot 65 jaar
- 26%
- 65 en ouder
- 10%
Huishoudens in Amsterdam
Cijfers voor postcodegebied 1031
- Eenpersoons zonder kinderen
- 51%
- Meerpersoons zonder kinderen
- 21%
- Huishoudens zonder kinderen
- 72%
Huishoudens in Amsterdam
Cijfers voor postcodegebied 1031
- Huishoudens met één kind
- 12%
- Huishoudens met meerdere kinderen
- 15%
- Huishoudens met kinderen
- 27%
Woningen in Amsterdam
Cijfers voor postcodegebied 1031
- Woningen voor 1945
- 56%
- Woningen tussen 1945 en 1965
- 4%
- Woningen tussen 1965 en 1975
- 1%
- Woningen tussen 1975 en 1985
- 1%
- Woningen tussen 1985 en 1995
- 8%
Woningen in Amsterdam
Cijfers voor postcodegebied 1031
- Woningen tussen 1995 en 2005
- 1%
- Woningen tussen 2005 en 2015
- 12%
- Woningen na 2015
- 19%
- Huurwoningen
- 90%
- Koopwoningen
- 10%
Overige in Amsterdam
Cijfers voor postcodegebied 1031
- Gemiddelde WOZ waarde
- € 346.000,-
- Personen onder de 65 met uitkering
- 15%
Overige in Amsterdam
Cijfers voor postcodegebied 1031
- Adressen per km²
- 3142
- Stedelijkheid (schaal 1 op 5)
- 100%
Korte feiten over Amsterdam
Amsterdam is de hoofdstad van Nederland. De stad, in het Amsterdams ook Mokum genoemd (afkomstig uit het Jiddisch), ligt in de provincie Noord-Holland, aan het IJ, het Noordzeekanaal en de monding van de Amstel. De stad ligt in de gelijknamige gemeente Amsterdam en heeft 873.338 inwoners (1 januari 2021), Groot-Amsterdam telt 1.459.402 inwoners.
Thuis in Vastgoed
Indien u vragen heeft of u wilt een bezichtiging inplannen, dan kunt u gebruik maken van het formulier hiernaast. Er zal daarna op korte termijn contact met u worden opgenomen.
Contact opnemen
Thuis in Vastgoed
Het best beoordeelde makelaarskantoor van Amsterdam Oost en omgeving
Bent u op zoek naar een woning in Amsterdam of wilt u uw woning verkopen? Dan helpen wij u graag verder. Door onze locatie aan het Pireausplein in het Oostelijk Havengebied weten wij precies wat er speelt op en rond het KNSM-eiland maar ook in de rest van Amsterdam kennen wij de markt op ons duimpje. Gekoppeld aan onze persoonlijke service en benadering maakt dat wij beoordeeld zijn tot beste makelaarskantoor van Amsterdam-Oost en omgeving en wel met een 9,4!
Naast verkoopbemiddeling is Thuis in Vastgoed al sinds de start actief op het gebied van aankoopbegeleiding en hebben er inmiddels honderden mensen via ons kantoor een nieuwe woning gevonden. Uiteraard is Thuis in Vastgoed ook actief op het gebied van taxeren en aangesloten bij het NRVT en het NWWI. Voor diverse andere specialismen zoals verhuur, erfpachttaxaties, particuliere beleggingsadviezen en expatservices kunt u ook terecht bij Thuis in Vastgoed.
Wilt u weten wat we voor u kunnen betekenen? Dan bent u bij Thuis in Vastgoed, makelaarskantoor in Amsterdam, aan het juiste adres. Neem eens contact op met ons voor een vrijblijvend advies!
THUIS IN VASTGOED
GOED GEVOEL
Nieuwste reviews
-
Olympiakade 19 1
Zeer professioneel en deskundig. Een appartement kopen in Amsterdam is niet eenvoudig en Thuis in Vastgoed heeft ons hier geweldig in bijges...
-
Leonard Bernsteinstraat 70 A
Amazing and very personalized service. Communication is great and very clear. Everything was done on time and with no issues whatsoever. Ver...
-
Scheepsbouwweg 165
Tien jaar geleden heeft Migiel me al geholpen als aankoopmakelaar bij mijn eerste koophuis. Toen viel meteen op hoe betrokken hij is, met ve...